Inmueble en La Vall d’Uixó con nave, oficinas y aparcamiento

La Vall D'Uixó (Pol. Ind. La Mezquita )
venta: 450.000 €
Ref. 95254871 Superficie 3.100 m2
Descripción

Magnífica nave industrial en construcción ubicada en el Polígono Industrial La Mezquita, en La Vall d’Uixó. Su posición estratégica, a tan solo 24 km de Castellón y 45 km de Valencia, con acceso directo a la autovía A-7, la convierte en una opción ideal para empresas que buscan buena comunicación y proyección.

El inmueble se sitúa sobre una parcela de 2.054,04 m² y dispone de una superficie construida registrada de 2.980,66 m², distribuidos en planta sótano, planta baja y dos plantas altas. La nave ocupa 1.060,87 m² dentro de la parcela y se rodea de zonas exteriores de aparcamiento y maniobra en los laterales norte, este y oeste.

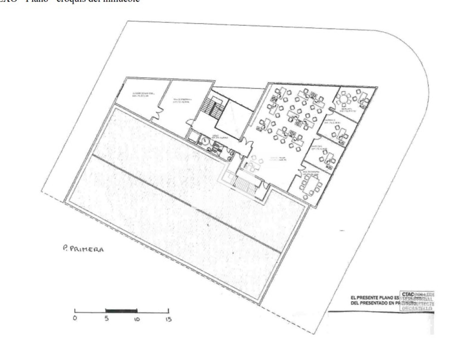
La distribución por plantas es la siguiente:

Planta sótano: 1.084,75 m² construidos (961,20 m² útiles). Incluye zonas de almacén, cuarto de instalaciones y vestíbulo, además de acceso para vehículos por rampa.

Planta baja: 1.060,87 m² construidos (951,28 m² útiles), destinados a almacén, zona de tienda y baños.

Primera planta: 435,52 m² construidos (364,10 m² útiles), con sala de muestras, almacén, despachos, baños y zonas de trabajo.

Segunda planta: 435,52 m² construidos (366,52 m² útiles), destinada a despachos, comedor, sala de reuniones, baños y zona de expositores.

La nave se encuentra en construcción (obra sin terminar), lo que permite al comprador adaptar la configuración interior a las necesidades de su actividad: logística, exposición, oficinas, distribución, sede corporativa o combinación de usos.

Una propiedad versátil, amplia y perfectamente conectada, ubicada en un polígono en desarrollo con gran potencial de crecimiento. Una oportunidad excepcional para empresas e inversores que busquen un inmueble con múltiples posibilidades y excelente ubicación en el eje mediterráneo

Características
Precio Venta 450.000 €
Construidos 3.100 m2
Útiles 3.100 m2
Precio/m² 145 €/m²
Estado A reformar
Calificación Energética (G) VER
Vídeos
Escalas de eficiencia


-
-

Contacto

Si deseas más información sobre esta propiedad, por favor, rellena el formulario.

 Sí, he leído y/o acepto las Condiciones de uso y la Política de privacidad
Tu agente
Iván Marín
Contacto
C/ Pintor Gumbau 11 12540 – Vila-real
Síguenos en: